買取再販事業
成約済
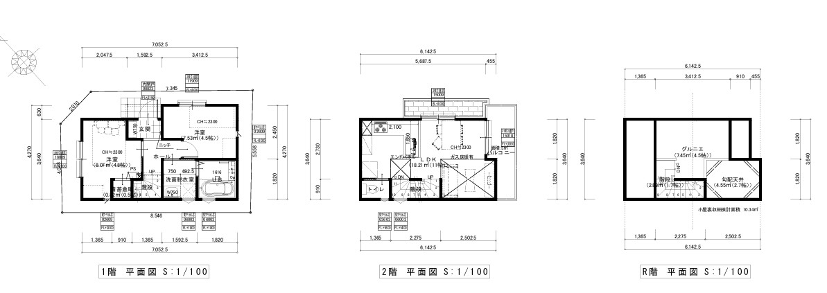
新着!! 国分寺東元町 新築一戸建
物件種別
戸建
所在地
東京都国分寺市東元町三丁目
販売価格
------万円
広さ
48.43㎡
築年数
令和7年8月完成予定
