民泊(旅館業)
レンタルスペース物件情報
新着
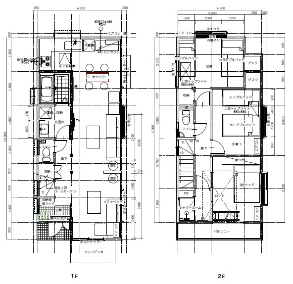
笹塚エリア 旅館業許可済み戸建て+運営法人付きで即事業開始可能物件
エリア
笹塚
種別
民泊(旅館)売買 5億以内
価格
13,780万円
土地面積
100.01㎡
建物面積
90.72㎡
人気の笹塚エリア、笹塚駅9分、代田橋駅5分
宿泊業許可済みで即時運用可能!
物件保有法人無料譲渡で外国人投資家も経営者ビザ取得可能!
宿泊施設仕様のフルリノベーション済み!
家具家電は新品!
希少な駐車スペース有!
縁側を備えた広々リビングスペースと3ベッドルームでプライバシーを確保しながら皆が集まれる稀有な物件です。
宿泊施設運営のプロが施設管理と運営を行います!
*要手数料
詳細はお問い合わせくださいませ。
宿泊業許可済みで即時運用可能!
物件保有法人無料譲渡で外国人投資家も経営者ビザ取得可能!
宿泊施設仕様のフルリノベーション済み!
家具家電は新品!
希少な駐車スペース有!
縁側を備えた広々リビングスペースと3ベッドルームでプライバシーを確保しながら皆が集まれる稀有な物件です。
宿泊施設運営のプロが施設管理と運営を行います!
*要手数料
詳細はお問い合わせくださいませ。